采暖系统工程量计算&施工工艺及计价
采暖系统工程量计算&施工工艺及计价
在建筑工程中,采暖系统是保障室内舒适环境的关键组成部分。本文将围绕两种常见的采暖方式——完全地板敷设采暖与散热器采暖,详细阐述其设计要点、施工工艺、关键部件及计价规则,结合CAD快速看图批量测量快速计量。
一、完全地板敷设采暖方式
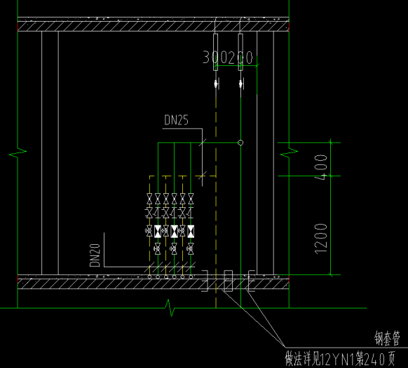
1、首先来看下常规的设计,下图为常规的采暖井设计大样图

2、我们来看下对应的实物图

上图所示位置为:户内分集水器前端到水暖井这一段地埋塑料管,转弯位置用热熔弯头管件,套用 10-2-66 采暖管道室内直埋塑料管(热熔管件连接子目(该子目主材为采暖管和采暖室内直埋塑料管热熔管件 9.78 个/10m,此管件为综合管件含量,查阅本册附录650 页,9.78 个管件内含有 1.8 个转换件(即嵌铜管件)--即按照含量表得出各种管件的综合单价上机到子目内综合管件单 价即可);子目含管卡,管卡为按照计价材料计入。

定额附录,管件含量表

3、下图所示,为常规的地板采暖户内平面图

4、地暖盘管是什么样子?下图可以直接查看

5、地暖管是什么敷设的呢?
基层处理:地面需平整(误差≤5mm)、干燥、无杂物,潮湿地面需先做防潮层(如 PE 膜)。
保温层铺设:铺挤塑板 / 苯板(厚度 20-30mm),拼接紧密无空鼓,墙边预留 5-10mm 伸缩缝。
反射膜铺设:覆盖保温层,平整无褶皱,搭接处用胶带密封,增强热量反射。
地暖管铺设:按设计间距(15-25cm,散热需求高的区域可加密)铺设,转弯处呈圆弧状(半径≥5 倍管径),避免折扁。
固定与打压:用卡丁 / 钢丝网固定管道(间距≤80cm),铺设后立即打压(0.6-0.8MPa),保压 30 分钟无渗漏。
填充层浇筑:用 C15-C20 细石混凝土覆盖管道(厚度 30-50mm),振捣密实,养护 7-10 天(期间禁止重压)。

6、什么是边界保温带?边界保温带如何计算工程量?
地板辐射采暖塑料管道在跨越建筑物的伸缩缝、沉降缝时所铺设的塑料板条,应按照边界保温带安装项目计算,塑料板条材料消耗量可按设计要求的厚度、宽度进行调整。
边界保温带按设计图示长度以“10m”为计量单位。

7、什么是分集水器?来,看下图就明白啦,下图1为常规的分集水器设计,下图2为带箱的分集水器实物图

(图一)
(图二)
8、在地暖分集水器设计中,常规的有PVC波纹套管,这个是什么样子的呢?我们来个图文对照,让大家一扫迷惑。
(设计图)

(实物图)
9、下面我们来看地板采暖的计价定额子目

9.1、图示1户内分集水器前端到水暖井这一段地埋塑料管,转弯位置用热熔弯头管件,套用 10-2-66 采暖管道室内直埋塑料管(热熔管件连接子目(该子目主材为采暖管和采暖室内直埋塑料管热熔管件 9.78 个/10m,此管件为综合管件含量,查阅本册附录650 页,9.78 个管件内含有 1.8 个转换件(即嵌铜管件)--即按照含量表得出各种管件的综合单价上机到子目内综合管件单价即可);子目含管卡,管卡为按照计价材料计入。

9.2、图示2所示位置为:户内分集水器后端到各个房间为地板敷设采暖套用地板辐射采暖 10-7-115 子目(分集水器位置的管接头为分集水器自带, 同时该子目主材也只有采暖管);子目含管卡,管卡为按照计价材料计入。

二、散热器采暖方式、施工工艺及计价
1、首先来看下常规的设计,下图为常规的采暖井设计大样图

2、设计实物图对照

3、常规户内设计图

4、散热器安装详图


5、散热器安装实物图

6、定额套项分析
分集水器位于水井内,分水器出水后沿墙一圈直埋,通过散热器换热后回到水井集水器,中间在散热器位置用热熔三 通分出,用转换件(嵌铜管件)接入散热器,转弯位置用热熔弯头管件,套用 10-2-66 采暖管道室内直埋塑料管(热熔管件连接)子目(该子目主材为采暖管和采暖室内直埋塑料管热熔管件 9.78 个/10m,此管件为综合管件含量,查阅本册附录 650 页,9.78 个管件内含有 1.8 个转换件(即嵌铜管件)--即按照含量表得出各种管件的综合单价上机到子目内综合管件单价即 可);子目含管卡,管卡为按照计价材料计入。
三、地暖工程量计算
1、点击CAD快速看图的测量,批量测量功能

2、选择线段,同时勾选过滤功能

3、框选测量范围,点击右键确认

4、查看当前层地暖盘管测量结果

结尾:综上所述,完全地板敷设采暖与散热器采暖作为主流采暖方式,其施工工艺的规范性与计价规则的准确性直接影响工程质量与成本控制。通过掌握地暖盘管敷设、分集水器安装、边界保温带计算及散热器管道连接等核心要点,利用CAD快速看图批量测量提升采暖系统计量速度。
#采暖系统#CAD快速看图#批量测量