有线电视系统一键清点-图形识别告别人工漏项
有线电视系统一键清点-图形识别告别人工漏项
有线电视系统中,电视插座、光端设备等器具数量众多且位置分散,传统人工点数易导致疲劳和错误。CAD快速看图的图块统计与条件筛选功能,可自动识别同类图块,按型号及标高筛选,一键生成统计表,实现高效精准计量。
一、基础知识
有线电视的组成有线电视系统一般由信号源、前端设备、干线传输系统、用户分配系统和用户部分组成。而系统规模的大小决定了所用设备与器材的多少。图6.3.3为一个大型有线电视系统的线路图。

(1)信号源。有线电视的信号源可以是录像机、DVD、摄像机等,也可以是通过开路接收电视广播、微波传输、卫星电视等的空中电视信号。这些信号经过解调后进入前端部分。
(2)前端设备。前端设备的作用是把经过处理的各路信号进行混合,把多路(套)电视信号转换成一路含有多套电视节目的宽带复合信号,然后经过分支、分配、放大等处理后变成高电平宽带复合信号,送往干线传输分配部分的电缆始端。
(3)干线传输系统。其作用是把前端设备输出的宽带复合信号进行传输,并分配到用户终端。在传输过程中根据信号电平的衰减情况合理设置电缆补偿放大器,以弥补线路中无源器件对信号电平的衰减。干线传输分配部分除电缆以外还有干线放大器、均衡器、分支器、分配器等设备。
均衡器是一种可以分别调节各种频率成分电信号放大量的电子设备,通过对各种不同频率的电信号的调节来补偿扬声器和声场的缺陷,补偿和修饰各种声源及其他特殊作用。

放大器:放大电视信号的设备,克服线路对信号的衰减,保证电视信号的质量。分配器是把一路信号等分为若干路信号的无源器件,常用的有二、三、四和六分配,用二分配和四分配可以组成其他各种分配器。分支器不是把信号分成相等的输出而是分出一部分到支路上去,分出的这一部分比较少,主要输出仍占信号的主要部分,分支器的分支输出数可以是1路2路以至更多。多路的分支器由一个定向耦合器和和分配器组成。

(4)用户分配系统。用户分配部分的作用是把干线传输系统提供的信号电平合理地分配给各个用户。比较大的子系统还装有支线放大器。
用户分配部分的主要部件有分支器、分配器、终端电阻、支线放大器等设备。电视用户可以通过连接线把电视机与用户盒相连,来接收全部电视节目。
(5)用户部分。用户部分是闭路电视系统的末端,包括电视机(监视器)和用户线,是显示闭路电视信号的终端设备。
二、清单计量规则

三、案例分析
1.观察五层弱电平面图和设备材料表,以电视插座为例。


2. 当器具数量较多时,为便于观察,可使用CAD快速看图中的【导出PDF】功能将图纸导出,导出时需注意框选范围、页面方向等设置,确保材料表清晰呈现。

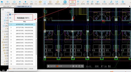
3. 使用【图形识别】功能,框选电视插座图例,在任意位置右键单击确认选择。确认图例准确无误后,输入图形名称“电视插座”,以便后续查阅。将查找范围设定为五层弱电平面图后启动识别。如图所示,通过【查看已识别图形列表】功能,可查看本案例中有18个电视插座。


有线电视系统一键清点工程量,可以用CAD快速看图【图形识别】结合【查看已识别图形列表】,轻松应对器具种类繁多、安装条件复杂的计量场景,数据清晰可追溯,显著减少人为疏漏。
#弱电器具#图形识别#CAD快速看图#有线电视系统