给水管道工程量计算-图纸对比+连续测量高效计量
给水管道工程量计算-图纸对比+连续测量高效计量
在给水管道支管工程量计算中,可以借助CAD快速看图的【图纸对比】与【连续测量】可提升计算效率。通过清晰比对图纸、快速筛选相同管径管道,实现精准计量,有效避免人工误差。
一、基础知识
室内给水管道安装。
室内给水管道的敷设有明装或暗装两种形式。
明装是指管道在建筑物内沿墙、梁、柱、地板等暴露敷设,特点是造价低、安装维修方便,但由于管道表面积灰,产生凝结水而影响环境卫生,也有碍室内美观。一般民用建筑和大部分生产车间内的给水管道均采用该方式。

暗装是将管道敷设在地下室的天花板下或吊顶中、管沟、管道井、管槽以及管廊内,特点是室内整洁、美观。但施工复杂,维修管理不便,工程造价高。标准较高的民用建筑和宾馆及工艺要求较高的生产车间一般采用暗装。暗装时应考虑管道及附件的安装、检修可能性,如吊顶留活动检修口,竖井留检修门。

给水管道的安装顺序应按引入管、水平干管、立管安装、水平支管安装,亦即按给水的水流方向安装。
1)引入管的敷设。室内给水管网供水应根据建筑物的供水安全要求设计成环状管网、枝状管网或贯通枝状管网。环状管网和枝状管网应有2条或2条以上引人管,或采用贮水池或增设第二水源。引人管应有不小于3%0的坡度,坡向室外给水管网。每条引入管上应装设阀门和水表、止回阀。当生活和消防共用给水系统,且只有一条引入管时,应绕水表旁设旁通管,旁通管上设阀门。环状管网干管相互连通,双向供水,安全可靠,但管线长,造价高。枝状管网单向供水,供水可靠性差,但节省材料,造价低。一般建筑内部给水管网宜采用枝状布置。
2)水平干管安装。给水横干管宜敷设在地下室、技术层、吊顶内,宜设2%~5%的坡度,坡向泄水装置。
给水管与其他管道共架或同沟敷设时,给水管应敷设在排水管、冷冻水管上面或热水管、蒸汽管下面。为了便于安装和检修,管沟内的管道应尽可能单层布置,多层布置时,一般将管径较小、阀门较多的管道放在上层。给水引入管与排水排出管的水平净距不得小于1m。室内给水与排水管道平行敷设时,两管间的最小水平净距不得小于0.5m;交叉敷设时,垂直净距不得小于0.15m;若给水管必须铺在排水管的下面时,给水管应加设套管,其长度不得小于排水管径的3倍。给水管道穿过地下室外墙或构筑物墙壁时,应采用防水套管。
3)立管、支管安装。给水管道的布置不得妨碍生产操作、交通运输和建筑物的使用。给水立管可以敷设在管道井内。给水立管明装时宜布置在用水量大的卫生器具或设备附近的墙角、墙边或立柱旁。冷、热给水管上下并行安装时,热水管在冷水管上方;垂直并行安装时,热水管在冷水管左侧。给水立管和装有3个或3个以上配水点的支管始端,均应安装可拆卸的连接件。

二、清单计量规则

三、案例分析
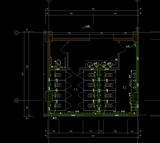
1.观察一层公共卫生间大样图和排水水系统图1:50,其中管径有De25,De32,De50和De40,管材为薄壁不锈钢管道,管道连接方式:双卡压连接。


2. 为便于后续测量给水管水平支管,可运用CAD快速看图的【比例】功能,量取任意线段并输入实际尺寸。结合【图纸对比】功能同步查看公共卫生间给排水管道轴测图,可直观追踪给水管管径变化。


3. 利用【测量】中的【连续测量】功能,标注相同管径给水管后右键结束,系统将实时计算长度。为区分不同管径管道,可通过【标注分类管理】功能,以差异化颜色及名称进行标注,便于后续分类统计。


4.水平给水管测量完成后,使用【测量统计】功能即可查看整体支管工程量。本案例工程量如下:De25:4.951m,De32:5.252m,De50:10.203m,De40:10.655m
总给水管支管工程量=水平支管+竖向支管
De25:4.951+(1-0.25)+(1-0.45)*2=6.801m
De32:4.252m
De50:10.203+(1-0.6)=10.603m
De40:10.655m

给水管道工程量计算,需要清晰定额规范,结合CAD快速看图,图层过滤与批量测量,大幅提升给水管道计量效率与数据准确性。
#给水管道 #批量测量 #图层管理 #CAD快速看图