消防栓钢管-批量测量轻松搞定
消防栓钢管-批量测量轻松搞定
在计算消防栓钢管工程量时,需留意管道的材质和管径。可以用CAD快速看图的【比例】将图纸校正为真实尺寸,【批量测量】快速识别并计算不同的消防栓钢管工程量。
一、基础知识
1.自动喷水灭火系统的分类
自动喷水灭火系统的分类如图4.3.1所示。

2.自动喷水灭火系统的组成
自动喷水灭火系统具有灭火效率高、不污染环境、寿命长、经济适用、维护简单等优点,初期主要集中在新建高层宾馆中使用,现在一些火灾危险性较大的生产厂房、仓库、汽车库、商场、文化娱乐场所、医院、办公楼等地上、地下场所都普遍选用,应用日趋广泛。
(1)湿式自动喷水灭火系统。湿式系统是指在准工作状态时管道内充满有压水的闭式系统。系统由闭式喷头、水流指示器、湿式自动报警阀组、控制阀及管路系统组成。具有控制火势或灭火迅速的特点。主要缺点是不适应于寒冷地区,其使用环境温度为4~70℃。

(2)干式自动喷水灭火系统。它的供水系统、喷头布置等与湿式系统完全相同,所不同的是平时在报警阀(此阀设在采暖房间内)前充满水而在阀后管道内充以压缩空气。该系统适用于环境温度低于4℃或高于70℃并不宜采用湿式喷头灭火系统的地方。主要缺点是作用时间比湿式系统迟缓一些,灭火效率一般低于湿式灭火系统,还要另外设置压缩机及附属设备,投资较大。
(3)预作用自动喷水灭火系统。该系统具有湿式系统和干式系统的特点,预作用阀后的管道系统内平时无水,呈干式,充满有压或无压的气体。该系统既克服了干式系统延迟的缺陷,又可避免湿式系统易渗水的弊病,故适用于建筑装饰要求高、不允许有水渍损失的建筑物、构筑物。
(4)雨淋系统。与前几种系统不同,雨淋系统采用开式喷头。系统包括开式喷头、管道系统、雨淋阀、火灾探测器和辅助设施等。系统工作时所有喷头同时喷水,好似倾盆大雨,故称雨淋系统。雨淋系统一旦动作,系统保护区域内将全面喷水,可以有效控制火势发展迅猛、蔓延迅速的火灾。
(5)水幕系统。水幕系统的工作原理与雨淋系统基本相同,所不同的是水幕系统喷出的水为水幕状。它是能喷出幕帘状水流的管网设备,主要由水幕头支管、自动喷淋头控制阀、手动控制阀、干支管等组成。水幕系统不具备直接灭火的能力,一般情况下与防火卷帘或防火幕配合使用,起到防止火灾蔓延的作用。

二、清单计量规则

三、案例分析
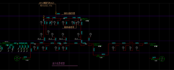
1. 观察消火栓原理图和一层平面图,消火栓系统给水管,架空管道当管径≤ DN50 时,应采用螺纹和卡压连接,当管径> DN50 时,应采用沟槽连接件(卡箍)连接。单体消火栓、自喷系统管道均采用国标壁厚内外壁热浸镀锌钢管。


2. 观察时发现一层平面图比例为 1:150,可借助 CAD 快速看图中的【比例】功能进行校准。随意量取图中线段并输入实际尺寸,以便后续量取消防栓钢管工程量。

3. 运用 CAD 快速看图中的【批量测量】功能计量水平消防栓钢管工程量。点选【测量】选项里的【批量测量】,在弹出的对话框中勾选【按已选线段的图层过滤】,一键框选后,确认无遗漏再右键结束命令,软件会自动算出 DN150 的消防栓钢管水平长度为 118.679m。
由于一层存在三种管径的消防栓管道,需独立核算工程量。通过【标注设置】功能,可将绿色用于表示 DN65 的水平消防栓管道,橙色用于表示 DN150 的水平消防栓管道,蓝色用于表示 DN100 的水平消防栓管道。
量取所有消防栓钢管后,可利用【测量统计】功能导出工程量。如图所示,DN150(橙色)为 118.679m,DN65(绿色)为 33.35m,DN100(蓝色)为 5.869m。



4.竖向消防栓钢管:(标高相减)
DN150:(1+3.6)*4=18.4m
DN65:1.1*8+0.4*3=10m
DN100:0.4*2=0.8m
消防栓钢管总长:(水平钢管+竖向钢管)
DN150:18.4+118.679=137.079m
DN65:10+33.35=43.35m
DN100:0.8+5.869=6.669m
消防栓钢管工程量计算可以用CAD快速看图【比例】将图纸调整为实际尺寸,【批量测量】迅速识别并计算消防栓钢管的工程量。
#批量测量#消防栓钢管#比例#CAD快速看图