CAD画图指南-散水台阶绘制
CAD画图指南-散水台阶绘制
散水台阶便不仅连接室内外空间,更承担着引导雨水流向、防止积水渗透的关键作用。一个绘制准确、构造合理的散水与台阶,往往能体现图纸的系统性与完成度。今天,我们将借助鸿鹄CAD(创新型国产CAD制图软件),轻松完成这一看似细微却至关重要的绘图任务。
一、基础知识
1.散水和暗沟(明沟)。
为了防止地表水对建筑基础的侵蚀,在建筑物的四周地面上设置暗沟(明沟)或散水,作为常见的排水设施,其坡向设计至关重要,需确保水流能有效、顺畅地排向排污口或下游集水区,避免积水或倒灌。
设计要求:
降水量大于900mm的地区应同时设置暗沟(明沟)和散水。暗沟(明沟)沟底应做纵坡,坡度为0.5%~1%,坡向窨井。外墙与暗沟(明沟)之间应做散水,散水宽度一般为600~1000mm,坡度为3%~5%。
降水量小于900mm的地区可只设置散水。暗沟(明沟)和散水可用混凝土现浇,也可用有弹性的防水材料嵌缝,以防渗水。

2.台阶
公共建筑室内外台阶踏步宽度不宜小于0.3m,踏步高度不宜大于0.15m,且不宜小于0.1m;踏步应采取防滑措施;室内台阶踏步数不宜少于2级,当高差不足2级时,宜按坡道设置;台阶总高度超过0.7m时,应在临空面采取防护设施。

二、案例分析-CAD制图步骤
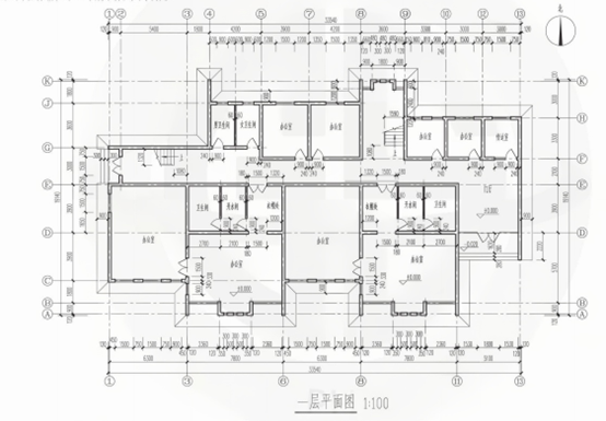
1.紧接上期内容,在完成墙体绘制的基础上,我们继续绘制散水与台阶。请注意图示标注单位为mm,由于图纸比例为1:100,绘制时需将尺寸缩小100倍。

2.绘制散水:
第一步:新建图层。单击【图层管理】,创建新图层并命名为“散水”,设置颜色为绿色(索引色3号),线宽为0.13mm,线型为continuous。

第二步:使用【PL】多段线命令,沿外墙外皮绘制散水轮廓线,确保最终形成封闭图形。


第三步:选中该多段线,使用中文搜索“偏移”命令(或输入【O】),设置偏移距离为9,取消勾选“保留源对象”,指定偏移方向(向外),生成散水外轮廓线。对于封闭图形,使用偏移命令可以使其放大缩小。


第四步:因台阶处无需散水,需进行修剪。将当前图层切换至“0”辅助线层,使用【L】直线命令沿散水边界绘制辅助线,随后执行【TR】修剪命令,删除台阶位置的散水线段。

【TR】命令提供“自动修剪”和“选边修剪”两种模式。“自动修剪”可智能识别所有可见图元作为潜在修剪边,点选需修剪的图元即可完成操作,适用于修剪单条线段或处理结构简单且分散的草图。“选边修剪”则需手动指定一个或多个图元作为修剪边界,能在密集图形中精准修剪目标区域,并支持复用特定边界进行多次修剪。
本案例推荐使用"选边修剪"功能,选中两条辅助线作为修剪边,确认后即可快速精准地修整台阶位置的散水线段。

第五步:修剪完成后,利用属性中的【快速选择】功能,一键选中所有位于“0”图层的对象(辅助线),按“Del”键或执行【E】删除命令将其清除。

第六步:最后,在散水转角处需添加拼接处分隔线。使用【L】直线命令补绘分隔缝。至此,散水绘制完成。

3.绘制台阶:
使用【L】直线命令绘制其中一条踏步线。
执行【AR】阵列命令,选择“矩形阵列”方式,设置列数为3,行数为0,列间距为3(由一层平面图图示可得踏面宽度为300mm)。鸿鹄CAD可以在这时移动鼠标预览阵列效果,满意后点击确定完成阵列。
另一侧台阶的绘制方法与此相同,由于方向变为水平方向的台阶,阵列时改为列数0行数3。
最终效果请参考图示。


鸿鹄CAD作为一款创新的国产CAD制图软件,支持双命令模式兼容传统命令行操作,同时提供直观的可视化点击及中文命令模糊搜索(例如输入“阵列”即可快速调启命令)。其启动仅需5秒,运行流畅,创新支持多图纸并行加载打开、互不影响、无需等待,非常适合新手快速上手使用。
#鸿鹄CAD#散水#台阶#制图#CAD制图#CAD画图#CAD教程