CAD教程系列(5)-轻松绘制楼梯大样图
CAD教程系列(5)-轻松绘制楼梯大样图
在前几期的教程中,我们依次学习了图框、轴网、轴号、门窗及散水台阶的绘制方法。本期我们将进一步深入讲解楼梯大样图的绘制。案例教学使用的CAD制图软件为鸿鹄CAD,主打小巧便捷高效的国产CAD制图软件-告别卡顿与等待,以安装包不到40MB的轻盈体积,实现5秒极速启动。
一、基础知识
在正式绘制之前,我们有必要对楼梯的基本分类与组成进行简要了解。
1.楼梯的分类:
按形式可分为:直跑楼梯、双跑楼梯、三跑楼梯、螺旋楼梯、弧形楼梯等。

2.楼梯的组成:
梯段:由连续踏步组成,是楼梯的主要使用部分。
平台:连接两个梯段的水平部分,包括休息平台和楼层平台。
栏杆与扶手:保障安全并辅助行走的构件。
踏步:由水平的路步面和垂直的踢面组成。
梯井:双跑或多跑楼梯中间形成的空间。

二、案例分析-CAD制图步骤
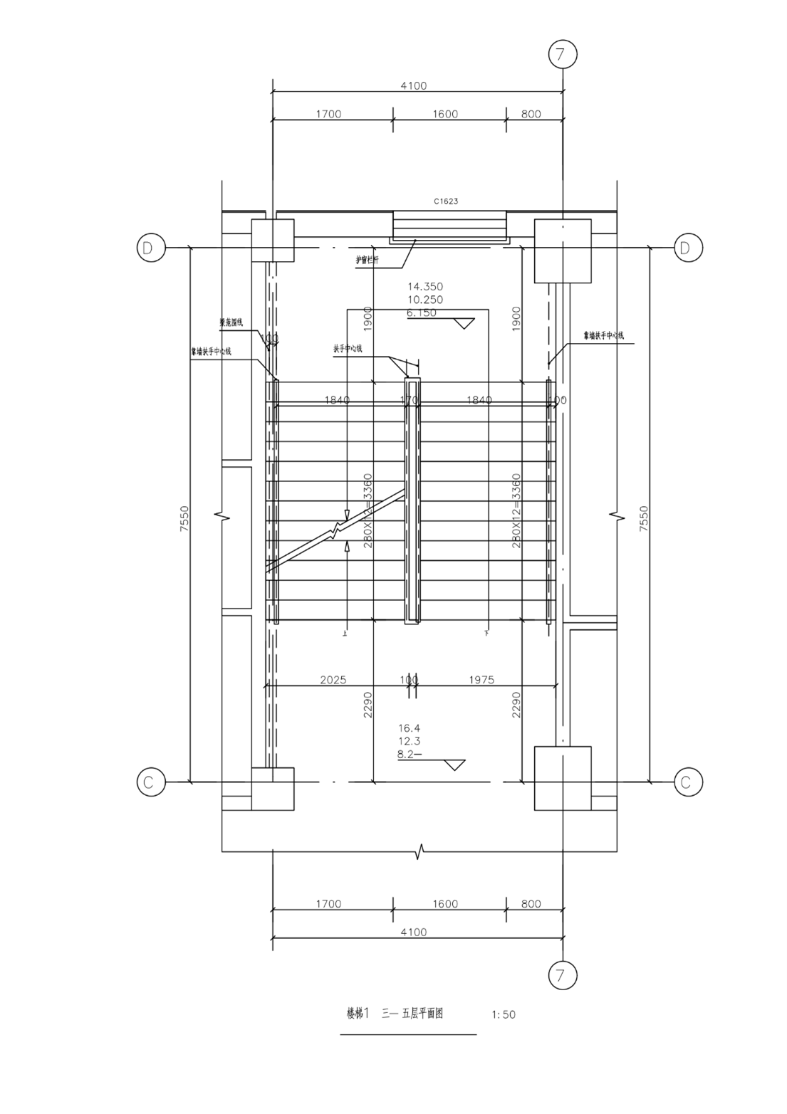
例图如下所示,本案例以楼梯1的三至五层平面图为例。由图可知,踏步宽度为280mm,长度为1840mm,一个楼梯段包含12个踏步,梯井宽度为170mm,栏杆与扶手宽度为60mm,休息平台宽度为1900mm。

1.绘制踏步
点击【图层管理】新建图层:(参数如下表)


为方便定位踏步、梯井、栏杆与扶手的位置,将图层切换至“辅助线”,先使用【L】直线命令绘制一条辅助线,然后使用【O】偏移命令快速偏移辅助线,偏移时记得勾选“保留源对象”。
偏移距离从7轴开始,自右至左依次为100mm、1840mm、170mm、1840mm(分别对应靠墙扶手中心线、扶手中心线、扶手中心线、靠墙扶手中心线);从D轴开始,自上至下依次为1900mm、3360mm(休息平台边界线、踏步起始线)。

绘制楼梯段时,将图层切换至“楼梯”,使用【L】命令绘制一段踏步,然后使用【AR】阵列命令,选择“路径阵列”方式,间距设为280mm(踏步宽度)。绘制时先确定阵列对象,再指定阵列路径。
鸿鹄CAD的阵列功能直接在工具栏中清晰展示了3种阵列方式:矩形阵列、路径阵列、环形阵列。“矩形阵列”将对象按行和列(网格状)进行多重复制,适用于线性、网格化排列,方向固定为X/Y轴或指定角度。
“环形阵列”将对象围绕一个指定中心点进行旋转复制,形成圆形或扇形排列。
“路径阵列”将对象沿一条指定曲线(路径)进行复制排列,适用于沿曲线、非线性排列,分布形态完全由路径形状决定。
另外鸿鹄CAD支持预览阵列效果,提前确认效果,减少重复修改工作。这里选择“路径阵列”方式更为精确快速。

2. 绘制栏杆与扶手
使用【PL】多段线命令沿扶手中心线绘制多段线。


使用【O】偏移命令,将多段线向内外分别偏移30mm(栏杆与扶手宽度的一半)。由于不需要保留扶手中心线上的多段线,可以在第二次偏移时取消勾选“保留源对象”。


不要忘记绘制靠墙扶手,使用【REC】矩形命令,切换画法为“两边”,沿靠墙扶手中心线偏移30mm绘制矩形(宽60mm,长33450mm)。另一侧的扶手可以使用【MI】镜像命令,先选择镜像对象,然后绘制对称轴,注意勾选“复制对象”。


绘制完成踏步与栏杆扶手后,可以将辅助线删除。使用【属性】中的【快速选择】,将图层为“辅助线”的线段全部选择,然后使用【E】删除命令或Del快捷键快速删除。

删除梯井处的踏步线,使用【TR】修剪命令,选择“选边修剪”,先选择外侧栏杆扶手轮廓线为剪切边,然后一键框选踏步线为剪切对象。


为清晰表达楼梯的走向和空间,图纸中常使用折断线。折断线通常为一条连续的Z字形或闪电形折线,此处使用【PL】多段线命令分别绘制Z字形和直线,然后使用【TR】修剪命令快速修剪图中标注的两处线段。

为便于复制,使用【B】创建块命令,选择折断线后确定插入点,块命名为“折断线”,然后使用【CO】命令向平行方向复制折断线。


平行复制折断线后可能不完全贴合,修改前需使用【X】分解命令将块打散。鸿鹄CAD的【X】命令可一键分解到底,方便省力,彻底解组图块。

使用【EX】延伸命令延伸折断线,先选择延伸边界,然后选择延伸对象。这样,楼梯的主体结构就绘制完成了。

3. 接下来,我们需要简单标注楼梯尺寸。
其中上下箭头需使用【PL】多段线绘制,将起点线宽设置为20,终点线宽为0,绘制时即形成箭头。


当然,不要忘记使用【T】多行文字清楚表达“上”至上一层,“下”至下一层。

最终绘制效果如图。

轻盈而不失强大,轻的是体积与负担,重的是性能与细节。鸿鹄CAD,创新型国产CAD制图软件,重新定义国产专业CAD的轻盈与强大。让每一次创意,都从流畅开始。
#鸿鹄CAD #楼梯 #制图 #CAD制图软件 #CAD画图 #CAD教程 #国产CAD